Winkelunit Rijnstraat 46H Amsterdam
Winkelunit Amsterdam Rijnstraat
De Rijnstraat is één van Amsterdams meest gevarieerde en diverse winkelstraten. Met bijna 200 verschillende ondernemingen is het aanbod in de straat zeer divers! Denk hierbij aan kleine boetiekjes, ouderwetse ambachten, modezaken en lifestylewinkels.
Ook grote publiekstrekkers als Dirk van den Broek, Kruidvat en Dirck3 Slijterijen zijn hier gevestigd. De combinatie van deze diverse (speciaal-) zaken maakt de Rijnstraat een zeer geliefde winkelstraat in Amsterdam.
Gelegen tussen de A2 en het stadscentrum is de Rijnstraat bijzonder goed bereikbaar met zowel auto als openbaar vervoer. In de Rijnstraat wordt een zeer laag parkeertarief gehanteerd.
.png)
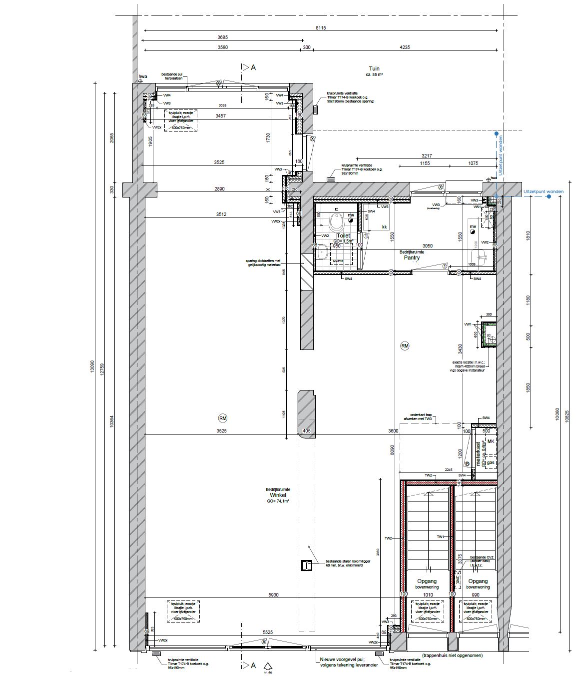
Momenteel hebben wij, gelegen op een A1 locatie aan deze drukke winkelstraat, een winkelruimte beschikbaar in de verhuur. Deze winkelruimte heeft een oppervlakte van ca. 100 vierkante meter.
Oppervlakte: circa 110 m². Het object bestaat uit circa 85 m² b.v.o. op de begane grond en 25 b.v.o. m² opslagruimte.
Voor meer informatie kunt u contact opnemen met de heer W. van Winsen van Brookland via info@brookland.nl of 0252-240746.
Huurprijs: € 27.500,- per jaar excl. BTW.